空氣輸送斜槽
概述
空氣輸送斜槽是一種新型透氣型,它具有耐高溫(可達150℃),耐腐蝕、耐磨損、吸濕性低、重量輕、表面平整、使用壽命長等優點。
特點
空氣輸送斜槽在輸送物料中沒有轉動部件,易于維護,密封性好,無噪音,操作安全可靠,耗電少,改變輸送方向方便,并能多點喂料和多點卸料而得到廣泛的應用。

參數
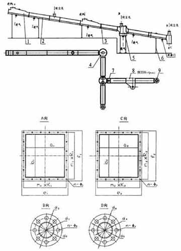
| 規格 | XZ200 | XZ250 | XZ315 | XZ400 | XZ500 | XZ630 | XZ800 | |||
| 槽體寬度 | m m | 200 | 250 | 315 | 400 | 500 | 630 | 800 | ||
| 輸 送 能 力 | a=4° | 水泥 | T/h | 22 | 40 | 70 | 130 | 220 | 320 | 400 |
| 生料 | 16 | 30 | 55 | 100 | 165 | 245 | 310 | |||
| a=6° | 水泥 | 40 | 65 | 120 | 250 | 400 | 610 | 765 | ||
| 生料 | 30 | 55 | 90 | 185 | 300 | 455 | 565 | |||
| a=8° | 水泥 | 50 | 80 | 140 | 300 | 470 | 720 | 900 | ||
| 生料 | 35 | 65 | 110 | 225 | 355 | 540 | 670 | |||
| a=10° | 水泥 | 60 | 100 | 170 | 380 | 570 | 900 | 1080 | ||
| 生料 | 45 | 80 | 140 | 285 | 425 | 670 | 800 | |||
| a=12° | 水泥 | 70 | 120 | 205 | 455 | 685 | 1080 | 1295 | ||
| 生料 | 50 | 95 | 165 | 340 | 510 | 805 | 960 | |||
| 槽體節長 | 標準節 | m m | 2000 | |||||||
| 非標準節 | m m | 250 | ||||||||
| 需要風壓 | KPa | 4-5.5 | ||||||||
| 需要風量 | m3/m2.min | 1.5-2 | ||||||||
| 透 氣 層 | 材質 | 合成纖維 | ||||||||
| 厚度 | m m | 4-6 | ||||||||
| 耐溫 | ℃ | 150 | ||||||||
| 徑向斷裂強度 | N/cm寬 | 4700 | ||||||||
| 阻力 | Pa | 800-1200(在2m3/m2.min條件下) | ||||||||
|
代號 |
a1 | b1 | e1 | f1 | m1×R1 | n1×R1 | n-Φ1 | |||||||
| 型號 | Ⅰ型 | Ⅱ型 | Ⅰ型 | Ⅱ型 | Ⅰ型 | Ⅱ型 | Ⅰ型 | Ⅱ型 | Ⅰ型 | Ⅱ型 | Ⅰ型 | Ⅱ型 | Ⅰ型 | Ⅱ型 |
| XZ200 | 120 | 200 | 120 | 150 | 210 | 280 | 210 | 230 | 2×86 | 4×63 | 2×86 | 3×66 | 8-Φ14.5 | 14-Φ12 |
| XZ250 | 150 | 250 | 150 | 200 | 240 | 330 | 240 | 280 | 3×70 | 4×70 | 3×70 | 3×83 | 12-Φ14.5 | 14-Φ12 |
| XZ315 | 150 | 250 | 150 | 250 | 240 | 330 | 240 | 330 | 3×70 | 4×75 | 3×70 | 4×75 | 12-Φ14.5 | 16-Φ12 |
| XZ400 | 150 | 315 | 150 | 315 | 240 | 395 | 240 | 395 | 3×70 | 5×73 | 3×70 | 5×73 | 12-Φ14.5 | 20-Φ12 |
| XZ500 | 200 | 400 | 200 | 400 | 290 | 480 | 290 | 480 | 3×88 | 6×75 | 3×88 | 6×75 | 12-Φ14.5 | 24-Φ12 |
| XZ630 | 200 | 500 | 200 | 500 | 290 | 580 | 290 | 580 | 3×88 | 7×79 | 3×88 | 7×79 | 12-Φ14.5 | 28-Φ12 |
用途
空氣輸送斜槽主要構件是透氣層,采用PETS-6(滌綸)型合成纖維織物,一種用于輸送干燥粉狀物料的氣力輸送設備,在水泥工業中常用于輸送水泥和生料粉。
動態
-
19
2025-03
空氣輸送斜槽在操作使用時的注意點
空氣輸送斜槽屬于密相流態化輸送,動力消耗少,生產費用低,在粉狀物料的水平輸送中,應用較廣泛。
-
22
2022-02
空氣輸送斜槽有什么作用,一講都知道
由于空氣輸送斜槽在輸送物料的過程中沒有運動的零件,所以與同功率的膠帶輸送機、螺旋輸送機、刮板輸送機相比,具有磨損少、易維護、耗電少、用材省、無噪音、密閉好、構造簡單、操作安全可靠
-
24
2020-09
空氣輸送斜槽的操作注意點講解
輸送斜槽是一種廣泛地應用于輸送干燥粉狀物料的氣力輸送設備,在水泥工業中常用于輸送水泥和生料粉。由于空氣輸送斜槽在輸送物料的過程中沒有運動的零件,所以與同功率的膠帶輸送機、螺旋輸送機、刮板輸送機相比,具有磨損少、易維護、耗電少、用材省、無噪音、密閉..
-
12
2018-03
淺談關于空氣輸送斜槽的優勢及其動力原理
空氣輸送斜槽是一種廣泛地應用于輸送干燥粉狀物料的氣力輸送設備,在水泥工業中常用于輸送水泥和生料粉。更多資訊,請關注公司網站:http://www.jingyida.com.cn/
-
14
2014-07
談談空氣輸送斜槽的工作原理
空氣斜槽是用于水平輸送干燥粉狀物料的設備。 空氣輸送斜槽是利用氣流的動能使散粒物料呈懸浮狀態隨氣流沿管道輸送的裝置。有吸送式、壓送式和混合式三種輸送形式。 圓振篩具有結構可靠、激振力強、篩分效率高、振動噪音小。
熱銷產品
-
DZSF直線振動篩
DZSF系列直線振動篩是由篩箱、篩框、振動電機、減振系統及座架等組成。直線振動篩是用振動電機作為振動源,固定在篩箱上兩臺相同的振動電機做相反方向自同步旋轉,振動電機所帶的偏心塊在旋轉時各個瞬間位置所產生的離心力之分力沿拋擲方向作往復運動
立即了解?DZSF直線振動篩
-
CZ系列倉壁振動器
-
ZG系列慣性振動器
-
GZ系列電磁振動給料機
GZ系列電磁振動給料機在生產流程中,用于把塊狀、顆粒狀、粉狀物料從貯料倉或漏斗中定量、均勻、連續地給到受料裝置中去。
立即了解?GZ系列電磁振動給料機